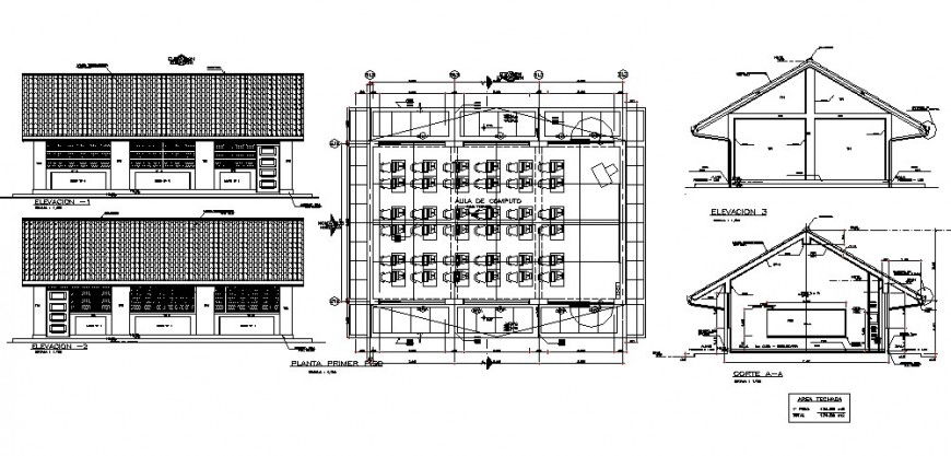
School classrooms elevation, section and plan cad drawing details dwg file
Description
School classrooms elevation, section and plan cad drawing details that include a detailed view of flooring view with doors and windows view and staircase view details, balcony view with wall design, dimensions and roof or terrace view, main entry gate with parking area for students and staff and classrooms, stream departments, library and laboratory, staff room and cultural hall, sanitary for staff and sanitary and much more of school details.

Uploaded by:
Eiz
Luna
