Structure Detail Drawing Design
Description
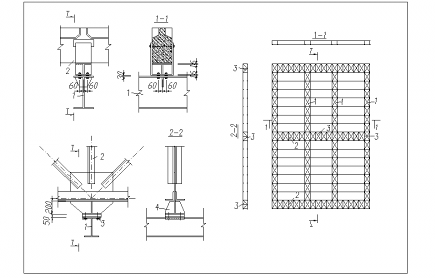
Structure Detail Drawing Design, Different type of Section Detail & Other Detail also include, With all dimension.
Uploaded by:
Eiz
Luna
Structure Detail Drawing Design, Different type of Section Detail & Other Detail also include, With all dimension.
Uploaded by:
Luna