Master bedroom all sided section and plan with furniture dwg file
Description
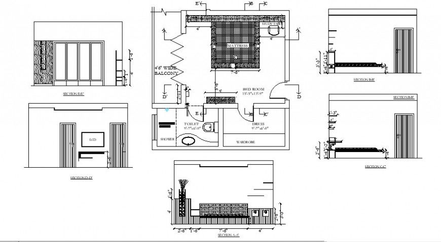
Master bedroom all sided section and plan with furniture that includes a detailed top view with departments view, furniture view, master bed elevation block main hall, doors and windows view, double bed view, dimensions details, ceiling details, interior details and much more of bedroom project.
File Type:
DWG
File Size:
362 KB
Category::
Interior Design
Sub Category::
Bathroom Interior Design
type:
Gold

Uploaded by:
Eiz
Luna

