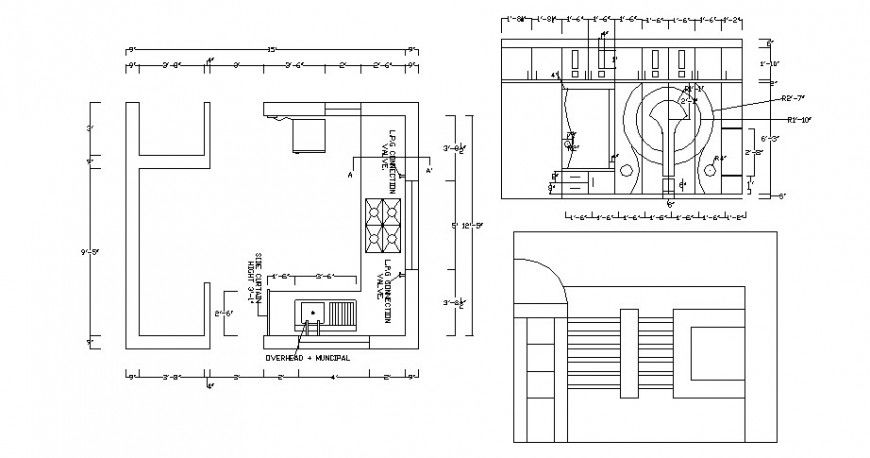
Kitchen area detail working plan detail drawing in this autocad format
Description
Kitchen area detail working plan detail drawing in this autocad format which includes of kitchen platform, gas-stove, kitchen sink, dimensions, furniture and appliances, refrigerators detail, wall and flooring detail, door and window detail, etc.
File Type:
DWG
File Size:
278 KB
Category::
Construction
Sub Category::
Kitchen And Remodeling Details
type:
Gold

Uploaded by:
Eiz
Luna
