Floor distribution layout plan details of apartment building dwg file
Description
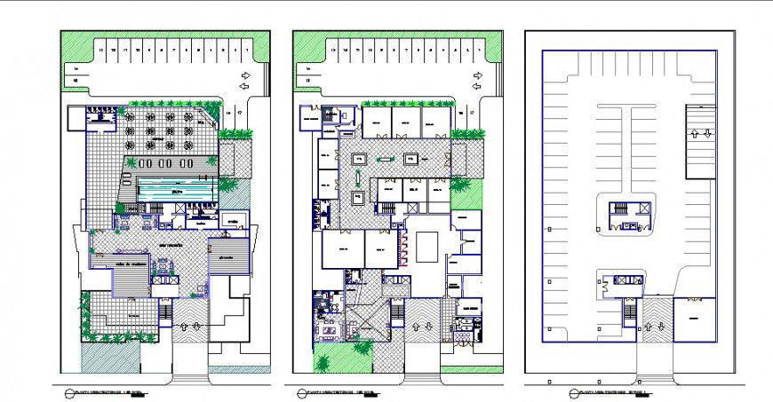
Floor distribution layout plan details of apartment building that includes a detailed view of main entry gate with basement parking floor details, garden area and landscaping structure details with main entry house door, drawing room and living room, family hall details kitchen and dining area, indoor staircases and laundry area and balcony, details and bedroom or master bedroom, toilets and bathroom with indoor doors, furniture details and much more of apartment project.

Uploaded by:
Eiz
Luna

