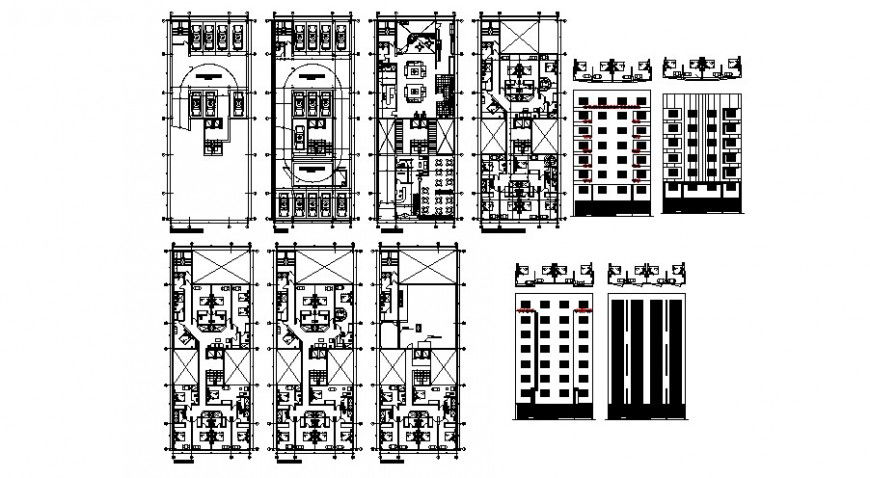
Multi-family residential building elevation, section and floor plan drawing details dwg file
Description
Multi-family residential building elevation, section and floor plan drawing details that includes a detailed view of basement car parking floor details with car blocks with flooring view, doors and windows view, staircase sectional details, balcony view, wall sections and dimensions details with main entry house door, drawing room and living room, family hall details kitchen and dining area, indoor staircases and laundry area and balcony, details and bedroom or master bedroom, toilets and bathroom with indoor doors, furniture details and much more of apartment project.

Uploaded by:
Eiz
Luna
