Drawing room area detail layout plan 2d view autocad file
Description
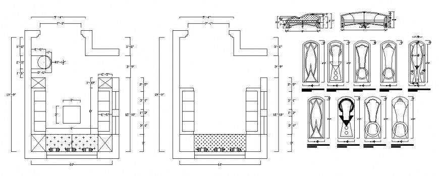
Drawing room area detail layout plan 2d view autocad file which includes detail such as sofa-set detail, wall and flooring detail, door blocks detail, dimensions detail, door design details, not to scale drawing, etc.
File Type:
DWG
File Size:
538 KB
Category::
Interior Design
Sub Category::
Living Room Interior Design
type:
Gold

Uploaded by:
Eiz
Luna

