Side cut constructive section details of single family house dwg file
Description
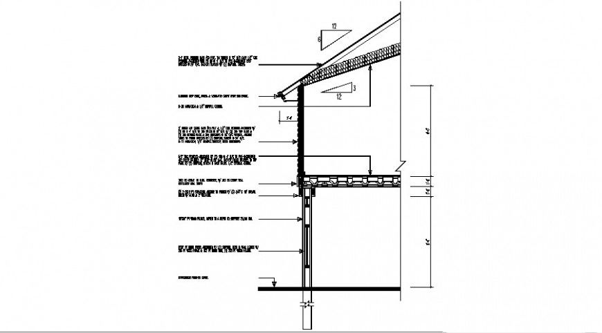
Side cut constructive section details of single family house that includes a detailed view of flooring view with wall construction, memory of materials, footings details, column view and beam construction, covers closure type with soil burried wall closure and exterior solera details, holes, interior partition and granite veneer of the country with steel supports, halfeneisen type with Brick partition, plaster plastering and Concrete wall and much more of house details.

Uploaded by:
Eiz
Luna

