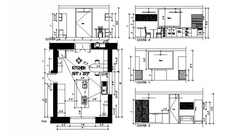
Kitchen area with dining area working plan and elevation in autocad software
Description
Kitchen area with dining area working plan and elevation in autocad software which includes detail of kitchen appliances and furniture like cabinet and shelves, gas-stove, platform, kitchen sink, dining table and chair, refrigerator detail, drawers and racks detail, etc. This drawing also includes various sides elevation of kitchen and dining area. The dining area includes the detail of dining table and chair.

Uploaded by:
Eiz
Luna

