Electrical installation layout plan and house floor plan cad drawing details dwg file
Description
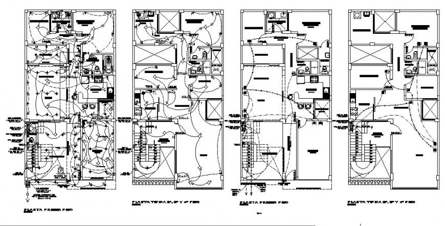
Electrical installation layout plan and house floor plan cad drawing details that includes a detailed view of main entry house door, drawing room and living room, family hall details kitchen and dining area, indoor staircases and laundry area and balcony, details and bedroom or master bedroom, toilets and bathroom with power layout details and lighting layout details, computation and schedule of loads with general notes and specifications, panel board details, riser diagram, convienence details, legends and electric equipment details, cable details and dimensions details and much more of house details.

Uploaded by:
Eiz
Luna
