Bridge section and construction cad drawing details dwg file
Description
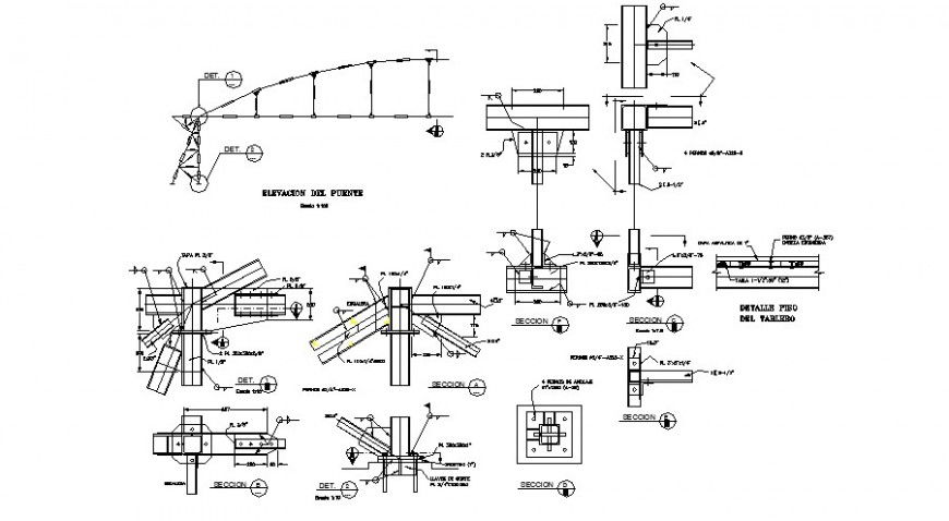
Bridge section and construction cad drawing details that includes a detailed view of detail of the remate (above alero) with parapet detail, detail of the parapet and the garnish and reinforced concrete posts, galvanized steel sheet defense, detail of the garnish with detail of the board, lid detail, list of rods, generalities details, dimensions details and specifications details,materials details, welding & concrete details, reinforcing steel, construction procedures, parapet and pilaster, garrison, elevation and section details and much more of bridge details.

Uploaded by:
Eiz
Luna

