Working plan of two stories residential house autocad file
Description
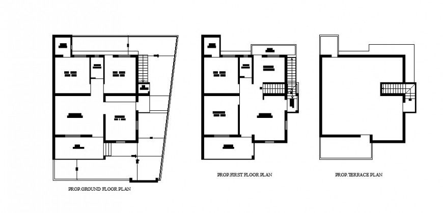
Working plan of two stories residential house autocad file the apartment includes detail of staircase with room interior dimension. Various room details area of drawing room area, kitchen and dining area, a bedroom area with sanitary toilet and bathroom details. Terrace plan drawing is also given.

Uploaded by:
Eiz
Luna

