Small house elevation, section, plan and door details dwg file
Description
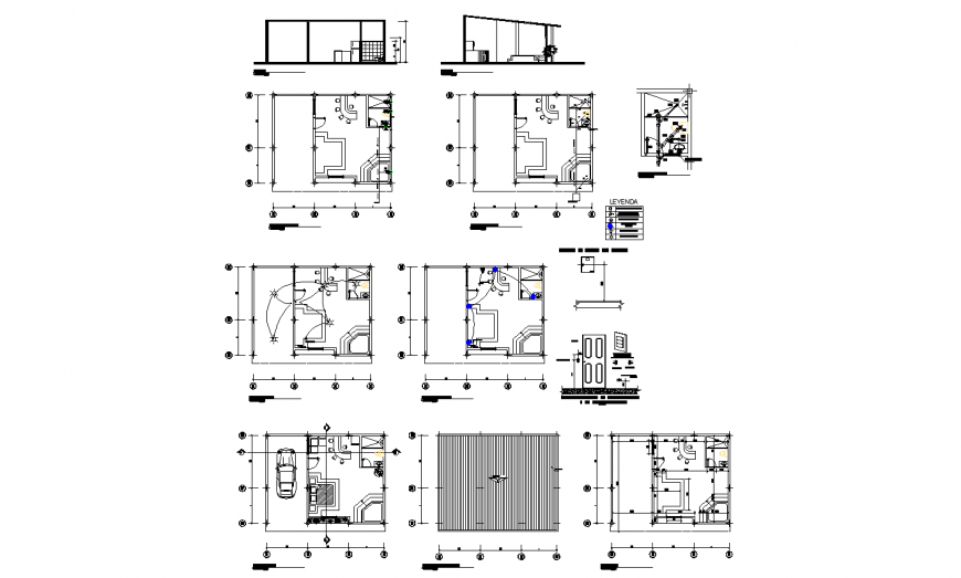
Small house elevation, section, plan and door details that includes a detailed view of flooring view, doors and windows view, staircase sectional details, balcony view, wall sections and dimensions details with main entry house door, drawing room and living room, family hall details kitchen and dining area, indoor staircases and laundry area and balcony, details and bedroom or master bedroom, toilets and bathroom with indoor doors, furniture details with door installation details and much more of house project.

Uploaded by:
Eiz
Luna

