Sanitary construction and installation details dwg file
Description
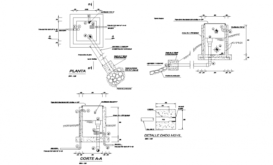
Sanitary construction and installation details that includes a detailed view of cover protection hm separating layer, thermal insulation panel type pf formed sheet for alabardilla, shaped plate for bead seaming, waterproofing, slope formation layer and elastic expansion joint, aluminum joinery stud, angular anchor, aluminum joinery crosspiece with anchoring to allow movement by dilation and anchor screw, veneer, elastic gasket for glass, elastic sealing gasket, double sheet glass and much more of bathroom details.
File Type:
DWG
File Size:
559 KB
Category::
Construction
Sub Category::
Construction Detail Drawings
type:
Gold

Uploaded by:
Eiz
Luna

