Sanitary services plan, installation and plumbing details dwg file
Description
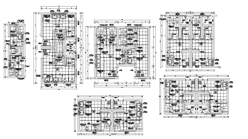
Sanitary services plan, installation and plumbing detailsthat includes a detailed view of toilet plan details with toilet sectional details and passage, sanitary equipment installation details, doors and ventilation details, plumbing details and interior details with dimensions details, wall section details and much more of sanitary installation details.
File Type:
DWG
File Size:
334 KB
Category::
Interior Design
Sub Category::
Bathroom Interior Design
type:
Gold

Uploaded by:
Eiz
Luna

