Small office building working plan detail drawing in autocad
Description
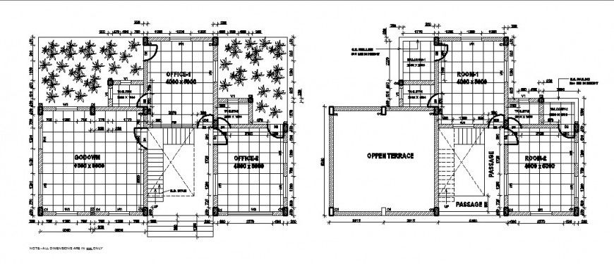
Small office building working plan detail drawing in autocad which includes detail of door and window units with room and cabins interior dimensions details wall and flooring detail, floor level detailing. sanitary toilet detail is also provided.

Uploaded by:
Eiz
Luna

