Main elevation, section and floor plan details of hotel building dwg file
Description
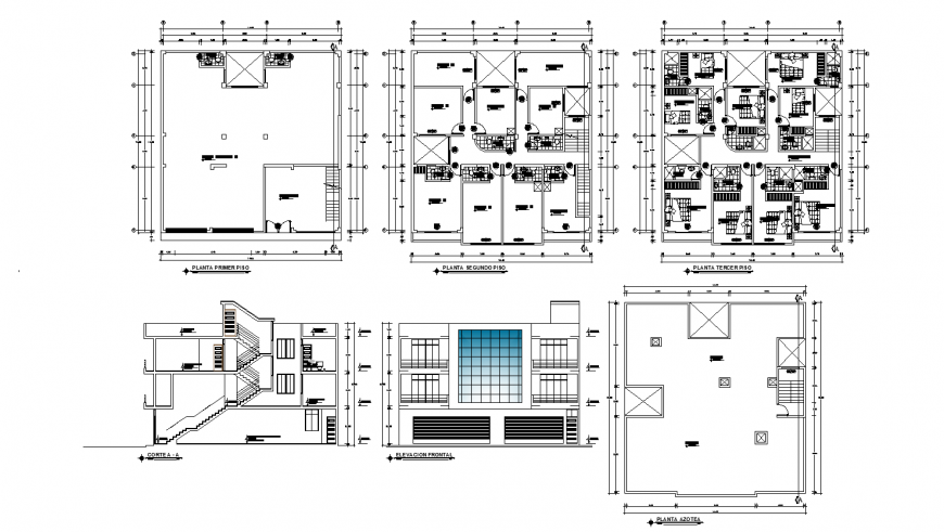
Main elevation, section and floor plan details of hotel building that includes a detailed view of flooring view with doors and windows view and staircase view details, balcony view with wall design, dimensions and roof or terrace view with parking area with outdoor garden, reception area with waiting lounge, dining area with banquet hall and kitchen, cleaning department with staff room and sanitary facilities, furniture details and interior details, laundry department, spa and gym details, back yard garden and service area, bedrooms like honeymoon suits and double bedrooms etc, cleaning departments, cafeteria with bar and terrace, elevators and much more of hotel project.

Uploaded by:
Eiz
Luna

