Fabric processing plant detailed architecture project dwg file
Description
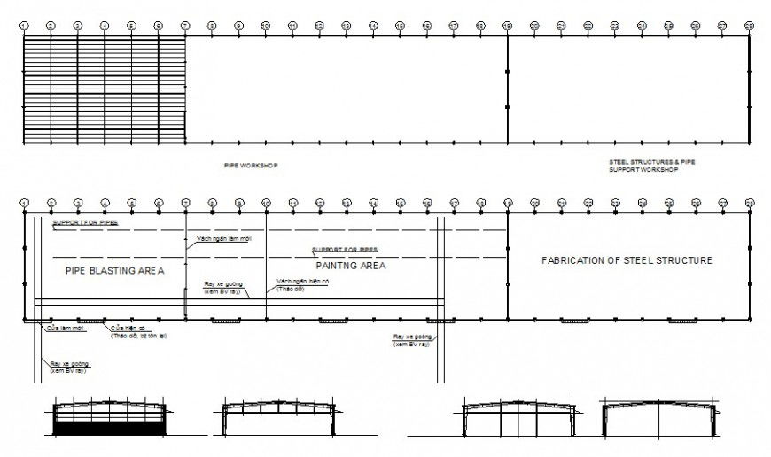
Fabric processing plant detailed architecture project that includes a detailed view of flooring view with doors and windows view and staircase view deyails, balcony view with wall design, dimensions and roof or terrace view details and main entry gate and security check area, garden area, loading area details and parking area, machinery details and processing plant details, administration office details with mess area details with dimensions details, departmental processing plants details, control room and labor area, kitchen and dining area, departmental offices and csr department and much more of industrial plant details.

Uploaded by:
Eiz
Luna

