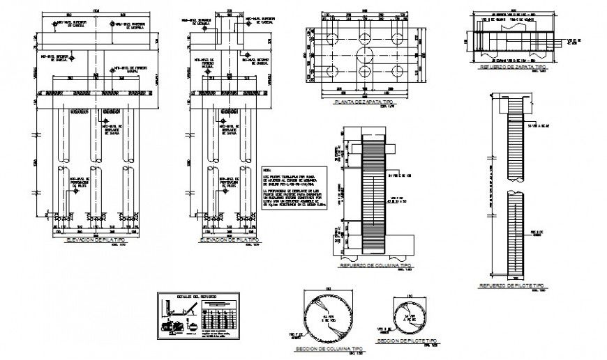
Pilot type concrete reinforcement construction details dwg file
Description
Pilot type concrete reinforcement construction details that includes a detailed view of capacity of load of the ground at level of foundation of shoes, foundation floors and concrete-cement mixture, false floors, cement-concrete mixture (on compacted soil) with Surpluses, cement-concrete mix medium stone & concrete structural, elements of confinement of masonry walls of hollow blocks, Minimum lengths of overlap (unless indicated) and much more of constructive details.
File Type:
DWG
File Size:
687 KB
Category::
Construction
Sub Category::
Concrete And Reinforced Concrete Details
type:
Gold

Uploaded by:
Eiz
Luna

