Building foundation plan and constructive structure cad drawing details dwg file
Description
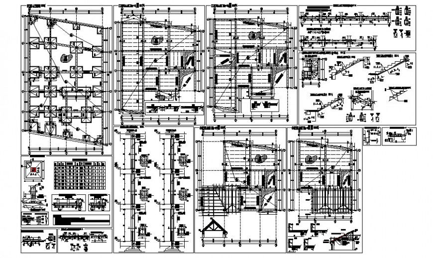
Building foundation plan and constructive structure cad drawing details that includes a detailed view of foundation plan, structure details and floor construction, beam construction and floor wise structure and constructive details with memory of materials and footings details, staircase construction and sectional details with steps details, dimensions, column view and beam construction, covers closure type and soil burried wall closure type and exterior solera details, holes, interior partition and granite veneer of the country with steel supports and much more of building construction details.

Uploaded by:
Eiz
Luna

