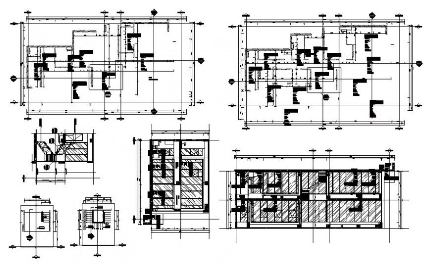
Apartment building floor plan details with ceiling design and plan dwg file
Description
Apartment building floor plan details with ceiling design and plan that includes a detailed view of Smooth embossed and riveted zinc-alum roof with vapor barrier details dynafoil asphalt felt, structural osb board with main entry house door, drawing room and living room, family hall details kitchen and dining area, indoor staircases and laundry area and balcony, details and bedroom or master bedroom, toilets and bathroom with indoor doors, furniture details and much more of apartment building details.

Uploaded by:
Eiz
Luna

