Window Elevation with Double Door CAD Drawing DWG file
Description
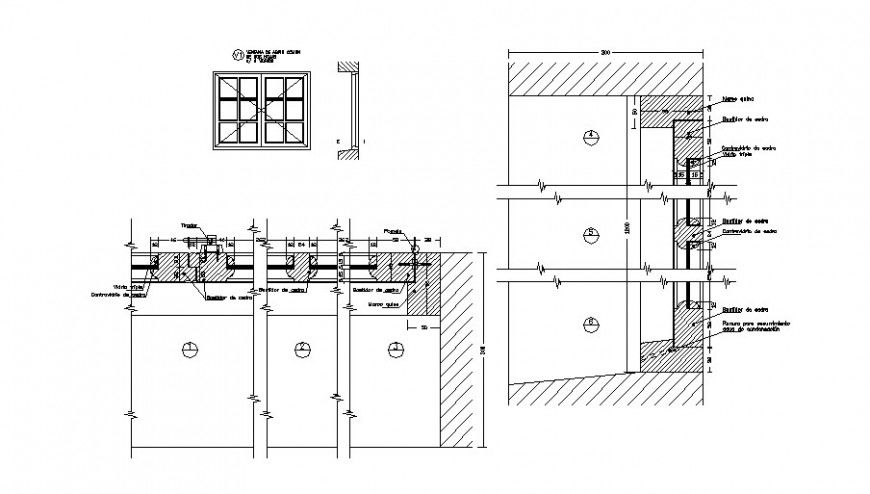
Double door window elevation and installation drawing details that includes a detailed view of double door window elevation, welded plate for grappling the clamp, double swing handle (with placement accessories) with reinforcement rib and expanded metal and ceramic block details, ceramic with block, lintel 2 irons with wood cap and frame and much more of window installation details.
File Type:
DWG
File Size:
43 KB
Category::
Dwg Cad Blocks
Sub Category::
Windows And Doors Dwg Blocks
type:
Gold

Uploaded by:
Eiz
Luna

