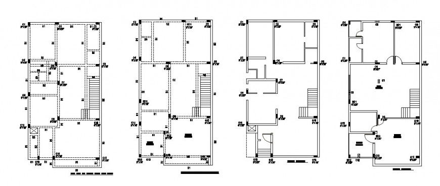
Residential apartment floor plan 2d drawing in Autocad
Description
Residential apartment floor plan 2d drawing in Autocad which includes room dimension of building with staircase details floor level detail. Wall and flooring detail are also provided with door and window units details of the apartment.

Uploaded by:
Eiz
Luna
