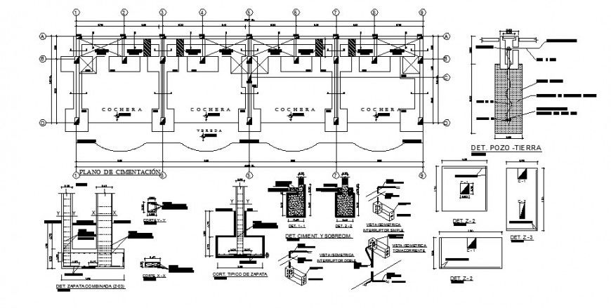
Foundation plan and footing detail 2d view construction drawing in autocad
Description
Foundation plan and footing detail 2d view construction drawing in autocad which includes detail of footing space dimension reinforcement detail provided in tension and compression zone. Main and distribution bars details are also provided. The structure is a reinforced concrete cement (RCC) structure.

Uploaded by:
Eiz
Luna

