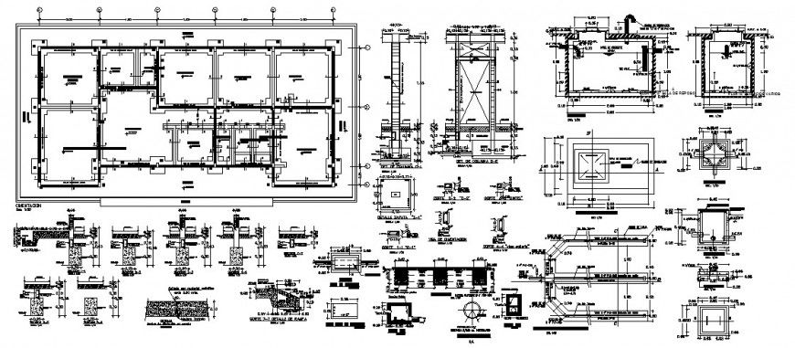
Foundation footing detail drawing 2d view autocad file
Description
Foundation footing detail drawing 2d view AutoCAD file which includes detail of reinforcement in tension and compression zone main and distribution bars detail. The structure is a reinforced concrete cement (RCC) structure.

Uploaded by:
Eiz
Luna

