Sanitary installation details of house with floor plan drawing details dwg file
Description
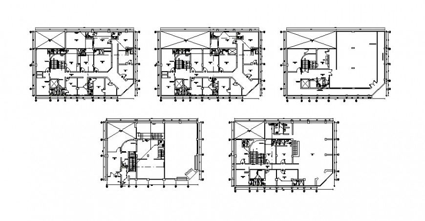
Sanitary installation details of a house with floor plan drawing details here you can download a free auto-cad file of toilet plan details with toilet sectional details and passage, sanitary equipment installation details, doors and ventilation details with plumbing details and interior details with dimensions details, wall section details with house floor plan and much more of sanitary installation details.
File Type:
DWG
File Size:
243 KB
Category::
Interior Design
Sub Category::
Bathroom Interior Design
type:
Gold

Uploaded by:
Eiz
Luna

