Sanitary units detail plan and sections drawing in autocad
Description
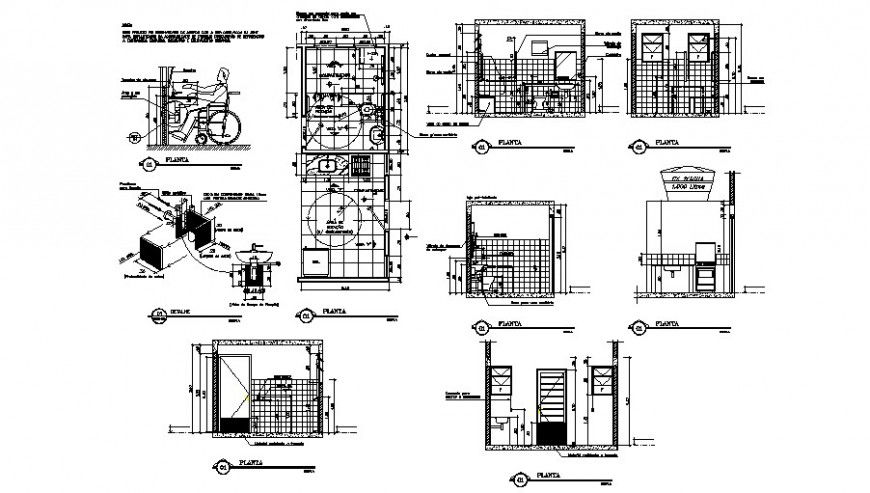
Sanitary units detail plan and sections drawing in autocad which includes a plan of the toilet and toilet area includes detail of water closet and washbasin details. Different sides sectional details are also provided in this Autocad drawing.
File Type:
DWG
File Size:
626 KB
Category::
Dwg Cad Blocks
Sub Category::
Sanitary CAD Blocks And Model
type:
Gold

Uploaded by:
Eiz
Luna

