Footing RCC structure blocks detail drawing in Autocad
Description
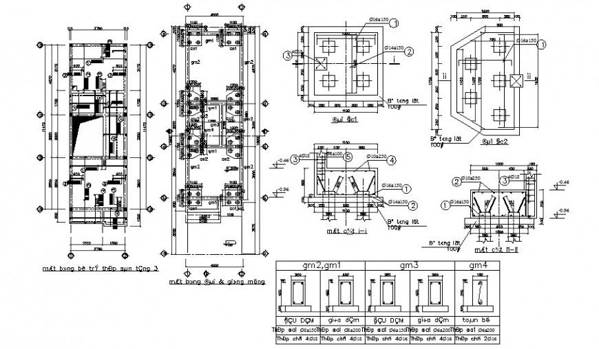
Footing RCC structure blocks detail drawing in Autocad which includes foundation plan. Column and beam structure details are also provided. Reinforcement detail are provided in tension and compression zone main and distribution bars details are also provided.
File Type:
DWG
File Size:
664 KB
Category::
Construction
Sub Category::
Reinforced Cement Concrete Details
type:
Gold

Uploaded by:
Eiz
Luna

