RCC structural units blocks detail drawing in autocad
Description
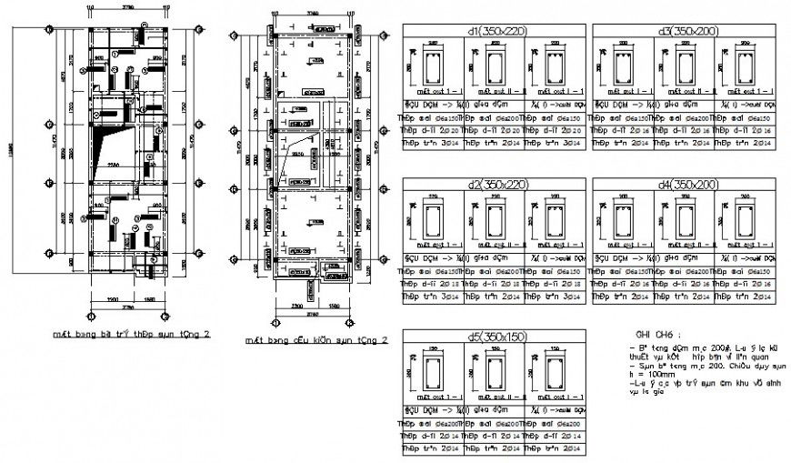
RCC structural units blocks detail drawing in autocad which includes specification list. Reinforcement details are provided in tension and compression zone with main and distribution bars details.
File Type:
DWG
File Size:
664 KB
Category::
Construction
Sub Category::
Reinforced Cement Concrete Details
type:
Gold

Uploaded by:
Eiz
Luna

