Hotel building unit working plan drawing in autocad
Description
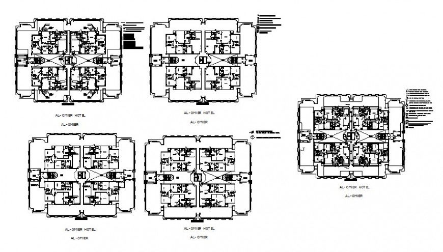
Hotel building unit working plan drawing in autocad which includes furniture layout details of building and the building is of multi-story. Specification and dimension details are also provided.

Uploaded by:
Eiz
Luna

