Foundation plan and other RCC structure details in autocad
Description
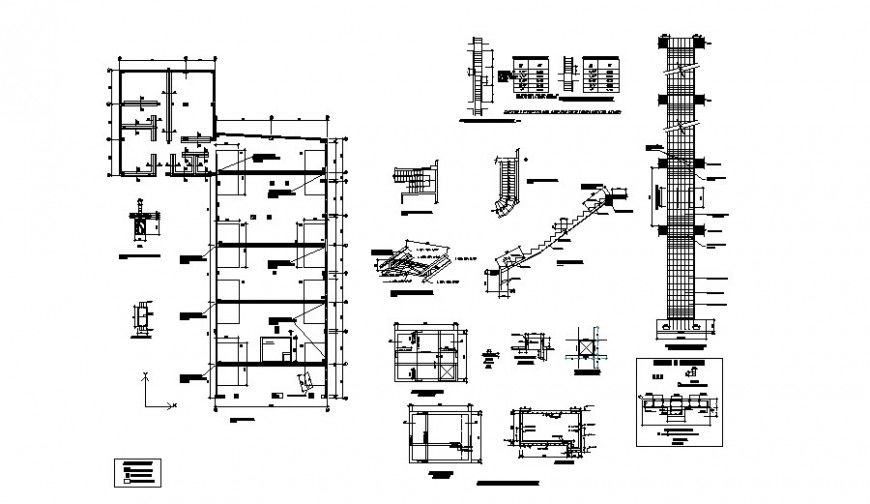
Foundation plan and other RCC structure details in autocad which includes staircase units detail with riser and tread details. Reinforcement details are provided in tension and compression zone with foundation plan details.

Uploaded by:
Eiz
Luna

