Public sanitary toilet detail plan and section in autocad
Description
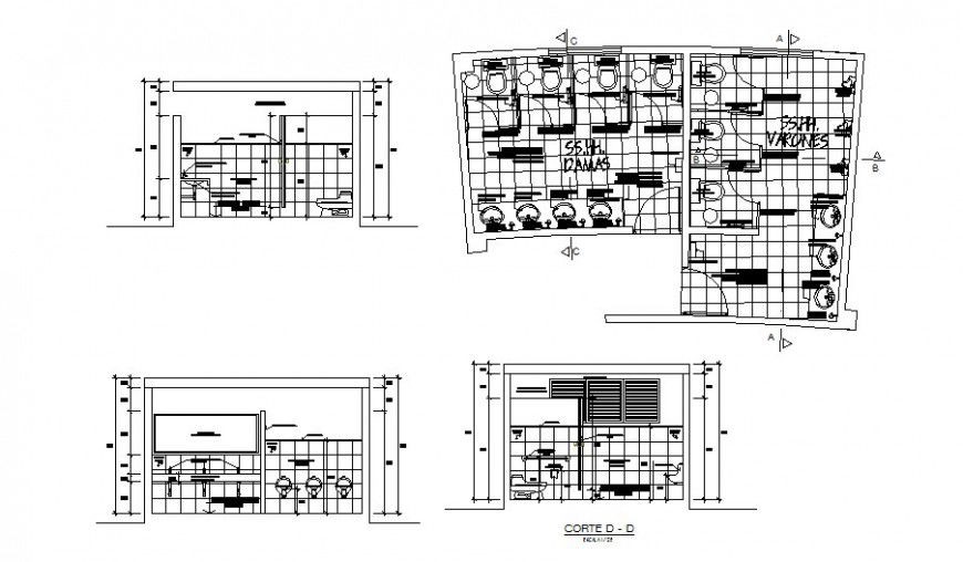
Public sanitary toilet detail plan and section in autocad which includes sanitary units details such as washbasin details and water closet detail. Work plan and sectional details are also provided in drawing with dimension details.
File Type:
DWG
File Size:
306 KB
Category::
Dwg Cad Blocks
Sub Category::
Sanitary CAD Blocks And Model
type:
Gold

Uploaded by:
Eiz
Luna

