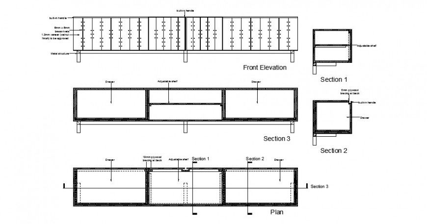
Counter desk detail elevation plan and section autocad
Description
Counter desk detail elevation plan and section autocad which includes front elevation details with sections and plan of furniture block. Section line and sectional details are also provided.

Uploaded by:
Eiz
Luna
