Housing unit block detail work plan 2d drawing in autocad
Description
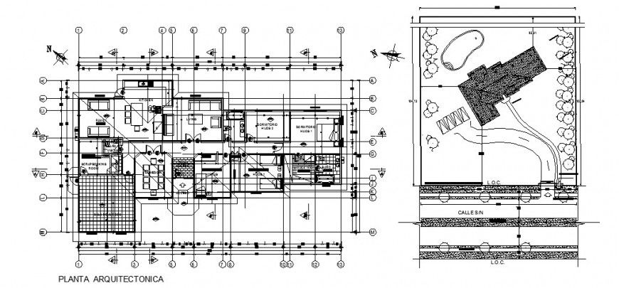
Housing unit block detail work plan 2d drawing in autocad which includes furniture layout plan of building with dimension and room details like drawing room furniture bedroom details and kitchen with dining area details are also provided.

Uploaded by:
Eiz
Luna

