First floor framing plan with beam schedule of house cad structure details dwg file
Description
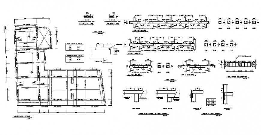
First floor framing plan with beam schedule of house cad structure details that includes a detailed view of continues slab details with typical beam details, typical solid slab and reinforcement details, typical beam foundation details with dimensions details, memory of material details, construction details and scale details, structure details and much more of structure details.

Uploaded by:
Eiz
Luna

