Layout plan, elevation and sectional detail of house drawing in autocad
Description
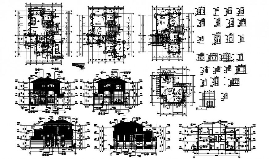
Layout plan, elevation and sectional detail of house drawing in autocad which includes furniture blocks details in the house with parking space and floor level details and different sides elevation and sections details.

Uploaded by:
Eiz
Luna

