Small temple Building detail elevations autocad drawing
Description
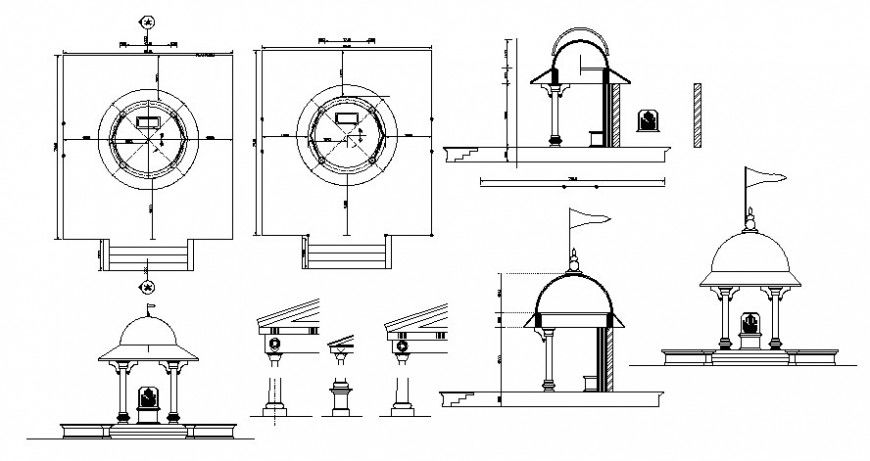
Small temple Building detail elevations autocad drawing which includes top elevation of the temple with stairway and different sides elevation. Dome and column supporters details are also provided.

Uploaded by:
Eiz
Luna

