Library building plan elevation and sectional autocad file
Description
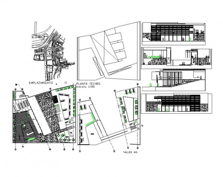
Library building plan elevation and sectional autocad file which includes a plan of building with different sides elevation and sections in the drawing. Dimension and furniture units details are also included in the drawing.

Uploaded by:
Eiz
Luna

