Electrical installation plan detail design of proposed house design drawing
Description
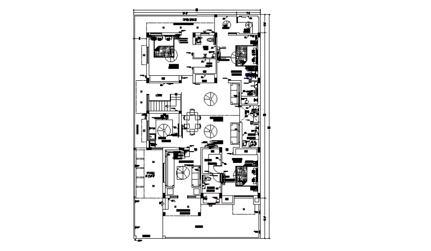
Here the Electrical installation plan detail design of proposed house design drawing with ground floor design drawing plan design , working plan design drawing in this auto cad file.
Uploaded by:
Eiz
Luna

