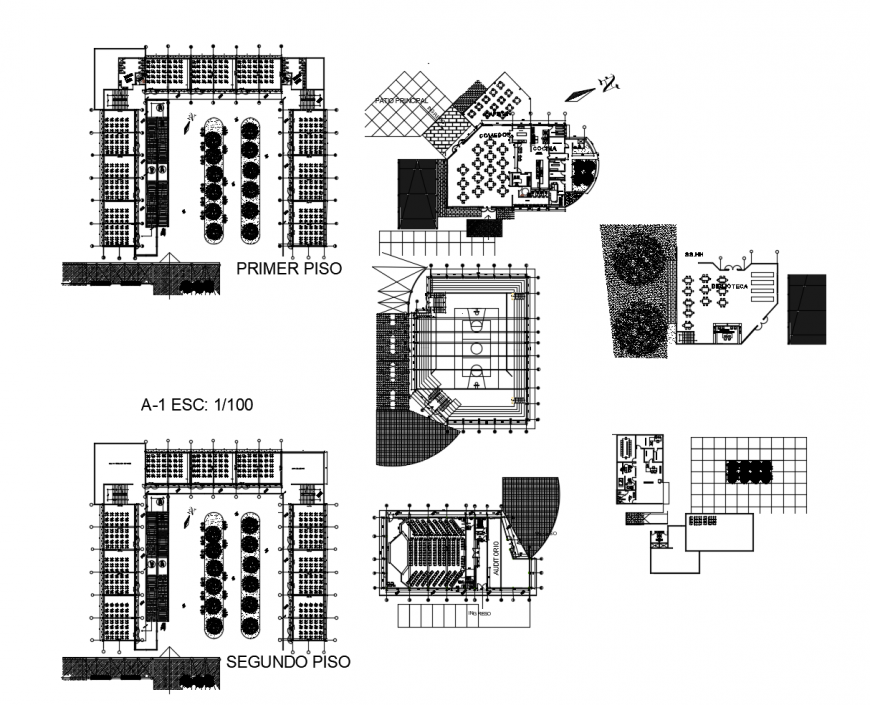
Multiplex theater and play ground area 2d view autocad file
Description
Multiplex theater and play ground area 2d view autocad file, multiplex theater building plan detail, wall and flooring detail, dimension detail, sports playground detail, ground markings detail, restaurant building detail, furniture units detail, north direction indicator detail, furniture table and chair detail, etc.

Uploaded by:
Eiz
Luna

