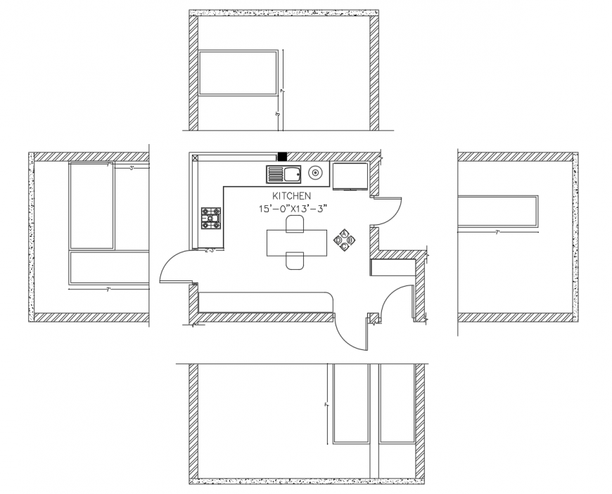
Kitchen working plan with appliances 2d view AutoCAD file
Description
Kitchen working plan with appliances 2d view AutoCAD file, plan view detail, platform detail, gas-stove detail, kitchen sink detail, door and window detail, dining table and chair detail, kitchen interior dimension detail, etc.
File Type:
DWG
File Size:
34 KB
Category::
Construction
Sub Category::
Kitchen And Remodeling Details
type:
Gold

Uploaded by:
Eiz
Luna

