Working unit plan of kitchen area with appliances detail autocad file
Description
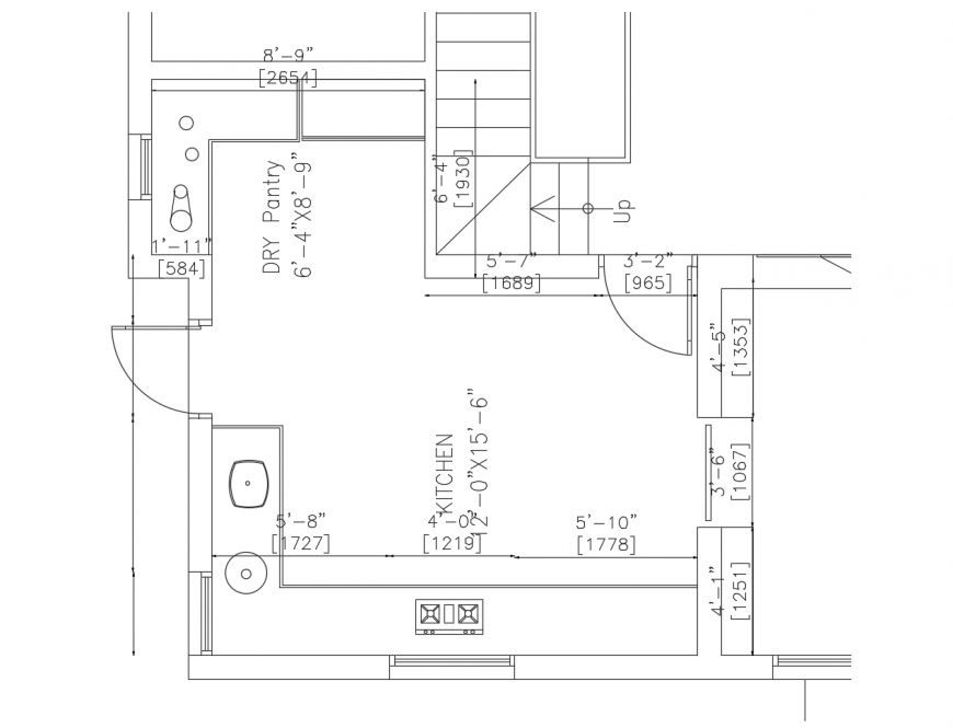
Working unit plan of kitchen area with appliances detail autocad file, plan view detail, kitchen appliances and furniture detail, kitchen platform detail, gas-stove detail, kitchen sink detail, kitchen interior dimension detail, door and window detail, stairway detail, etc.
File Type:
DWG
File Size:
29 KB
Category::
Construction
Sub Category::
Kitchen And Remodeling Details
type:
Gold

Uploaded by:
Eiz
Luna
