Working plan of residential building units autocad file
Description
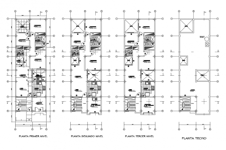
Working plan of residential building units autocad file, plan view detail, wall ad flooring detail, staircase detail, kitchen area detail, door and window detail, room dimension detail, sanitary toilet and bathroom detail, section line detail, hidden line detail, floor level detail, terrace plan detail, kitchen appliances and furniture detail, etc.

Uploaded by:
Eiz
Luna

