Kitchen area detail working plan 2d view autocad file
Description
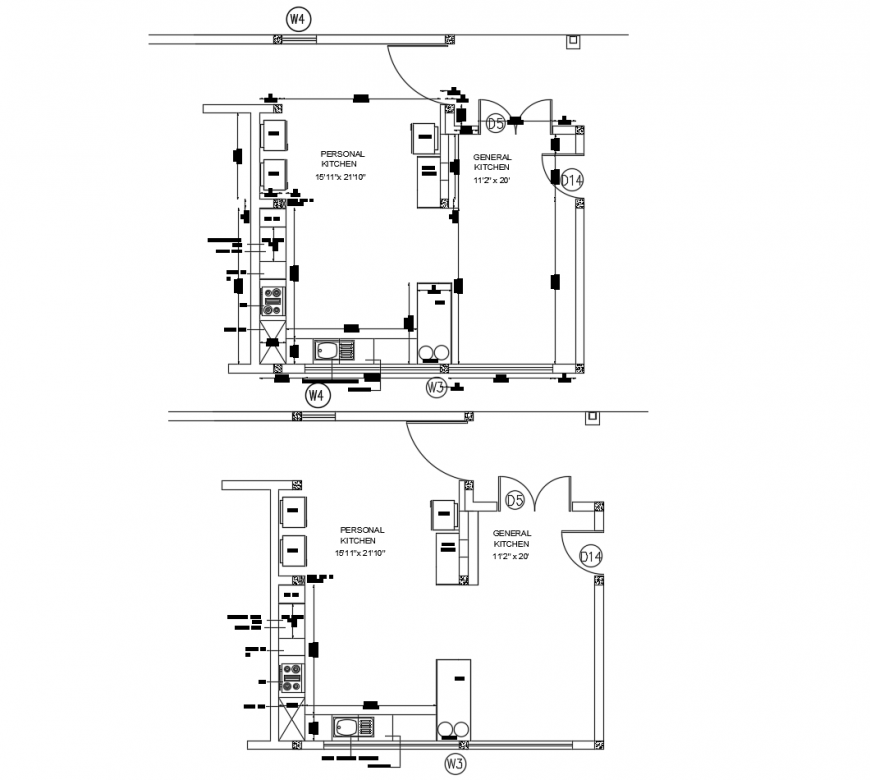
Kitchen area detail working plan 2d view autocad file, plan view detail, wall and flooring detail, kitchen interior dimension detail, kitchen appliances and equipment detail, gas-stove detail, kitchen sink detail, door and window detail, naming texts detail, etc.
File Type:
DWG
File Size:
50 KB
Category::
Construction
Sub Category::
Kitchen And Remodeling Details
type:
Gold

Uploaded by:
Eiz
Luna

