Reinforced concrete cement (RCC) structure 2d view autocad file
Description
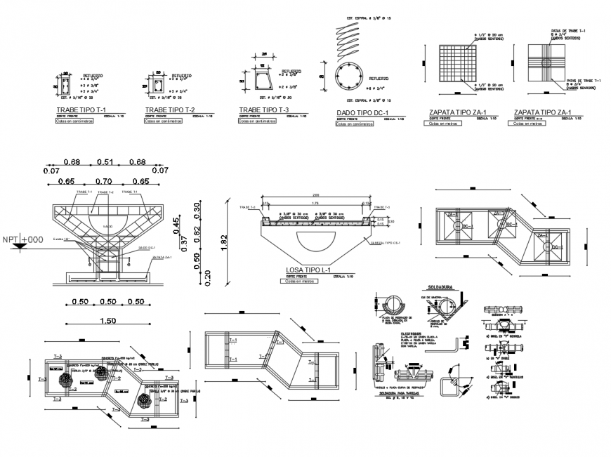
Reinforced concrete cement (RCC) structure 2d view autocad file, reinforcement detail in tension and compression zone, hook up and bent up bars detail, scale 1:10 detail, footing detail, bridge slab detail, dimension detail, main and distribution bars detail, effective cover detail, top elevation detail, bar dimension detail, etc.
File Type:
DWG
File Size:
6.4 MB
Category::
Construction
Sub Category::
Construction Detail Drawings
type:
Gold

Uploaded by:
Eiz
Luna
_structure_2d_view_autocad_file_21112018120822.png)
