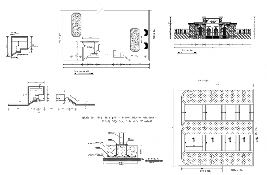
Facade detail elevation and plan 2d view autocad file
Description
Facade detail elevation and plan 2d view autocad file, dmension detail, design and shape detail, hatching detail, cut out detail, column concrete masonry detail, different angle sections detail, reinforcement detail in tension and compression zone, L-angle sections detail, welded and bolted joints, web and flange plate detail, etc.
File Type:
DWG
File Size:
5.5 MB
Category::
Construction
Sub Category::
Construction Detail Drawings
type:
Gold

Uploaded by:
Eiz
Luna

