Staircase and different RCC structure 2d view CAD construction block dwg file
Description
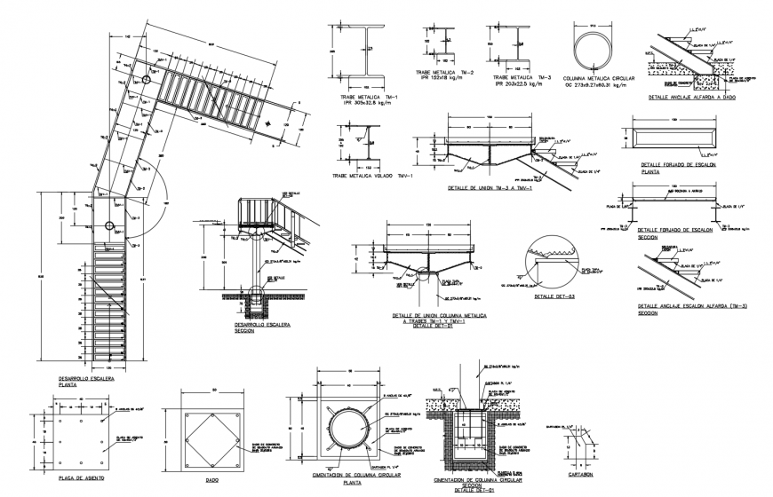
Staircase and different RCC structure 2d view CAD construction block dwg file, riser and tread detail, staircase detail, dimension detail, footing detail, reinforcement detail in tension and compression zone, hook up and bent up bars detail, stirrups detail to hold up bars in position detail, concrete masonry detail, main and distribution bars detail, plan view detail, etc.

Uploaded by:
Eiz
Luna

