Working plan of housing apartment building 2d view dwg file
Description
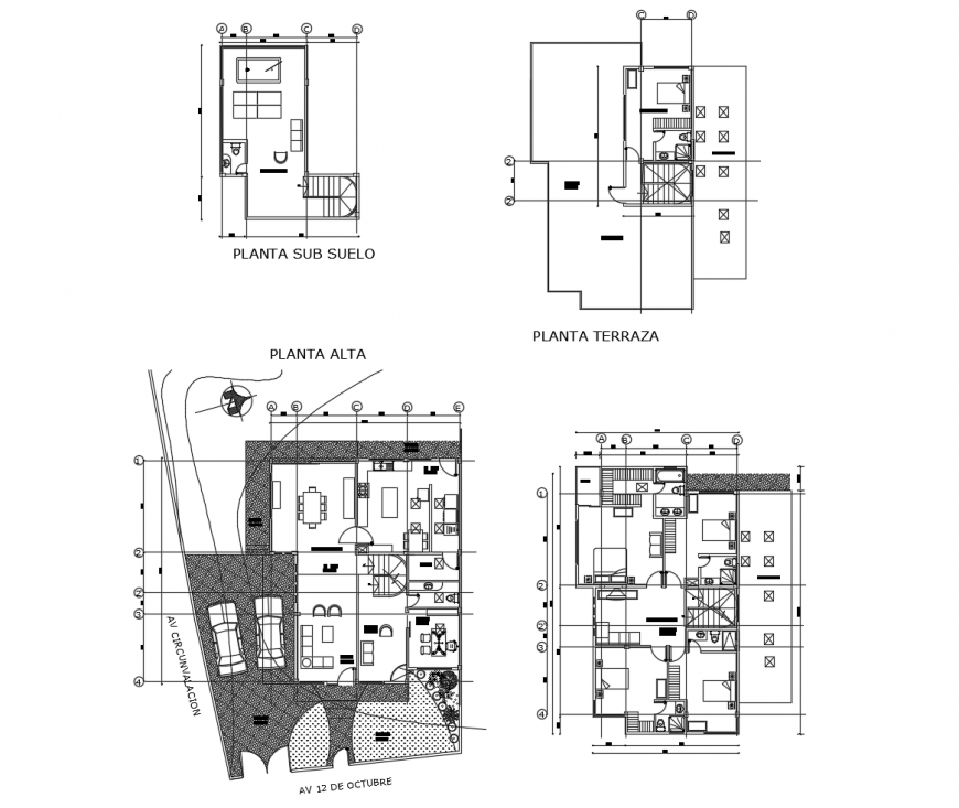
Working plan of housing apartment building 2d view dwg file, plan view detail, terrace plan detail, staircase detail, wall and flooring detail, sanitary toilet and bathroom detail, north direction indictor detail, floor level detail, furniture units detail, kitchen and dining area detail, parking space detail, room interior dimension detail, etc.

Uploaded by:
Eiz
Luna

