Fire cabinet section cad drawing details dwg file

Fire cabinet section cad drawing details dwg file
Profile

Uploaded by:

Eiz

Luna

Description

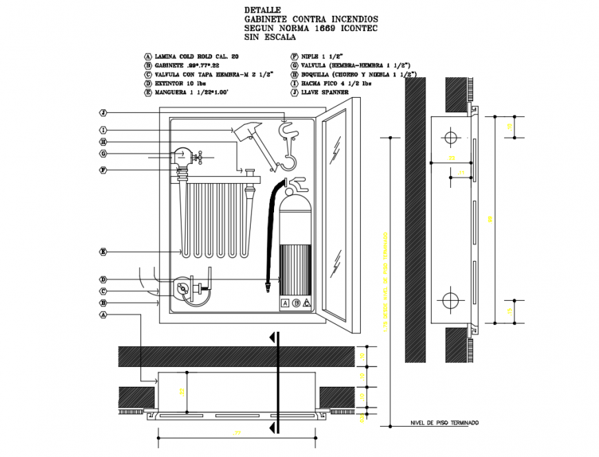
Fire cabinet section cad drawing details that includes a detailed view of cold bolt, niple, valve details, dimensions details, smoke tank details and much more of cabinet details.

Profile

Uploaded by:

Eiz

Luna

find Latest

Related Files

WhatsApp Chat