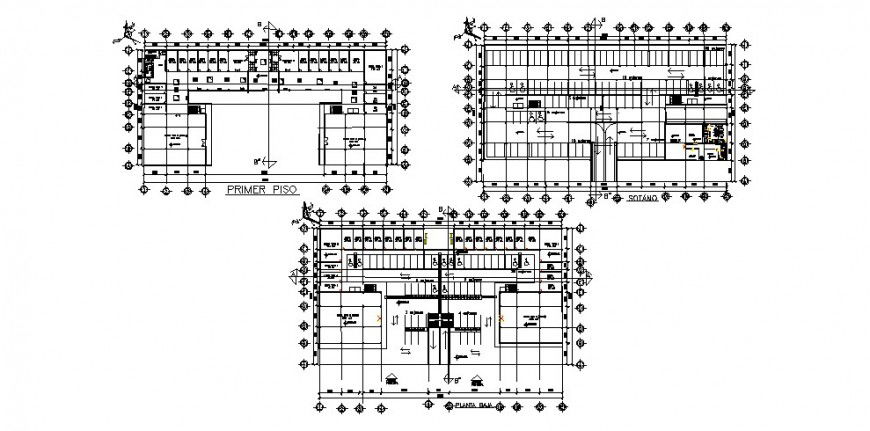
Shopping center foundation detail drawing in dwg AutoCAD file.
Description
Shopping center foundation detail drawing in dwg AutoCAD file. This file includes the detail drawing of the shopping mall with foundation plan, top view plan, first floor, top floor, basement plan, dimensions, section line.

Uploaded by:
Eiz
Luna

